Barra de Pesquisa Minimalista Integrada

Cohab Pedro Facchini

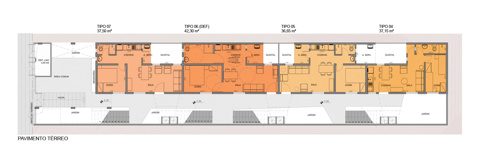
Trata-se de um projeto peculiar, em uma área encortiçada em meio a um bairro configurado de classe média-baixa em São Paulo. Para dar conta das 12 unidades necessárias, optou-se por um bloco vagonar – com apartamentos de 1 dormitório no térreo e duplex com 2 dormitórios no pavimento superior – que se apoia na empena cega da edificação vizinha, criando assim um corredor ajardinado na face noroeste.

Essa busca por uma proposta arquitetônica diferenciada encontrou respaldo no sistema de alvenaria estrutural e de pré-fabricados metálicos e de concreto, aliando a estética desejada com rapidez de execução.

Localização: São Paulo, SP
Área de atuação: Habitacional
Data: 2012
Área: 532 m²