Barra de Pesquisa Minimalista Integrada

FDE Jardim Santa Maria

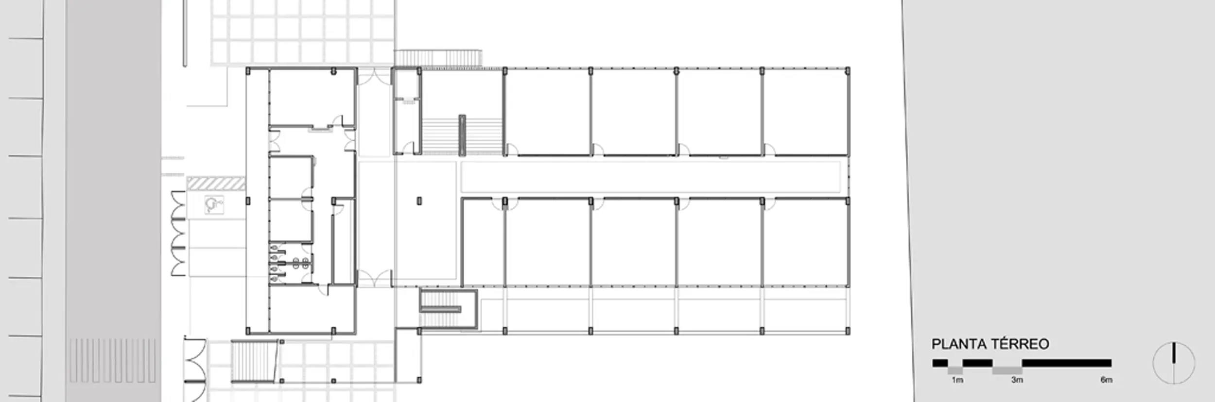
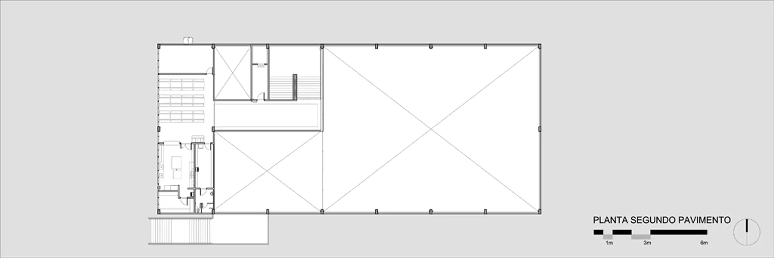
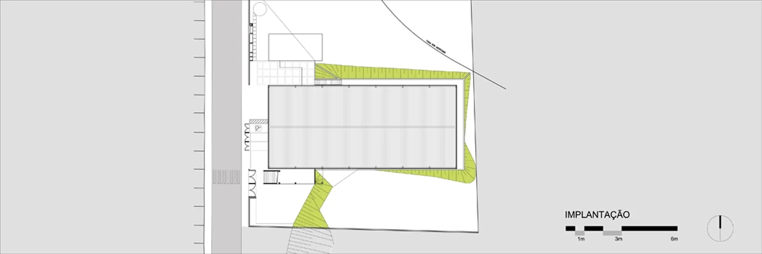
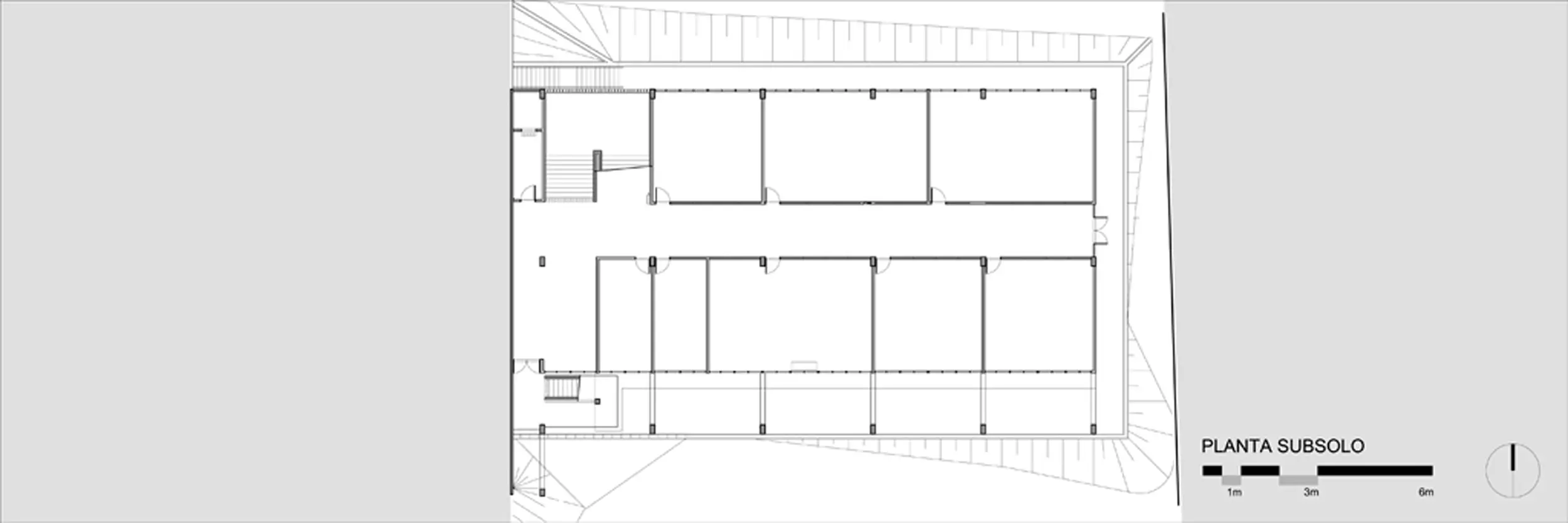
Em um quarteirão pobre na cidade de Osasco, região metropolitana de São Paulo, o projeto se situa no alto de uma colina que domina o vale. Solução usual neste tipo de programa, a quadra de esportes coberta se situa sobre as salas de aula. Aqui, por meio de um deslocamento dos dois volumes, ela funciona como beiral e protege as salas de aula da insolação excessiva

Localização: Osasco, São Paulo
Área de atuação: Institucional
Etapa: Executado
Data: 2005
Área: 2.570 m²