Barra de Pesquisa Minimalista Integrada

Nova Sede Petrobrás

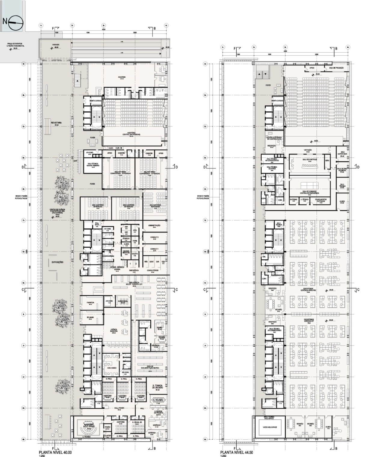
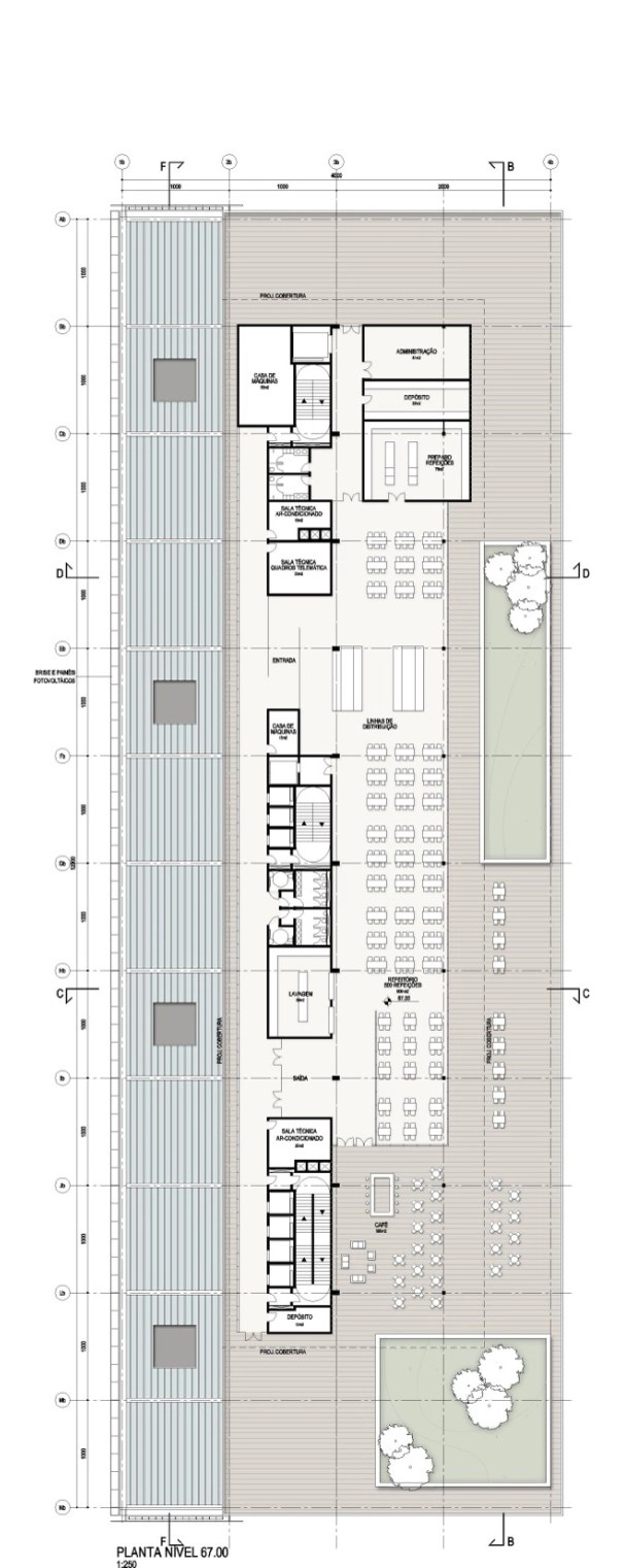
Este concurso de arquitetura, de 2005, teve como conceito principal a criação de um projeto ecologicamente sustentável. O sítio para implantação era uma montanha rochosa de 40 metros de altura na área central da cidade de Vitória, com abundante vegetação.


Reconhecendo a preocupação da Petrobras de minimizar o inevitável impacto do programa requerido, o projeto foi tratado com visão urbana. O conceito adotado foi a implantação de uma rua interna na cota +40 m, com um átrio, para distribuir as funções principais, e um edifício garagem horizontal próximo à rua principal, preservando a totalidade da montanha.

Localização: São Paulo, SP
Área de atuação: Institucional
Etapa: Concurso
Data: 2005